В этой квартире основной акцент сделан на шумоизоляции и инженерных системах. Все перегородки выполнены из бетонных блоков с повышенным коэффициентом шумоподавления. Они изготовленных на заводе в Санкт-Петербурге. Полная звукоизоляция охватывает потолки, стены и перегородки, благодаря чему квартира остаётся тихой и комфортной.
Электроснабжение
Система электроснабжения продумана до мелочей: есть управление климатом, ограничение мощности для стабильной работы приборов и защита от перегрузок.
Водоснабжение и фильтрация
Для воды установлены фильтры “Honeywell” с системой обратной промывки и магистральные фильтры для смягчения воды. Как и на всех наших объектах, предусмотрена защита от протечек и установлен водонагреватель, чтобы обеспечить комфорт круглый год.
Надёжность
Мы проектируем и воплощаем инженерные системы с особым вниманием к надёжности и комфорту, как делаем на каждом проекте.
ЖК "Bauman House"
Стиль и интерьер
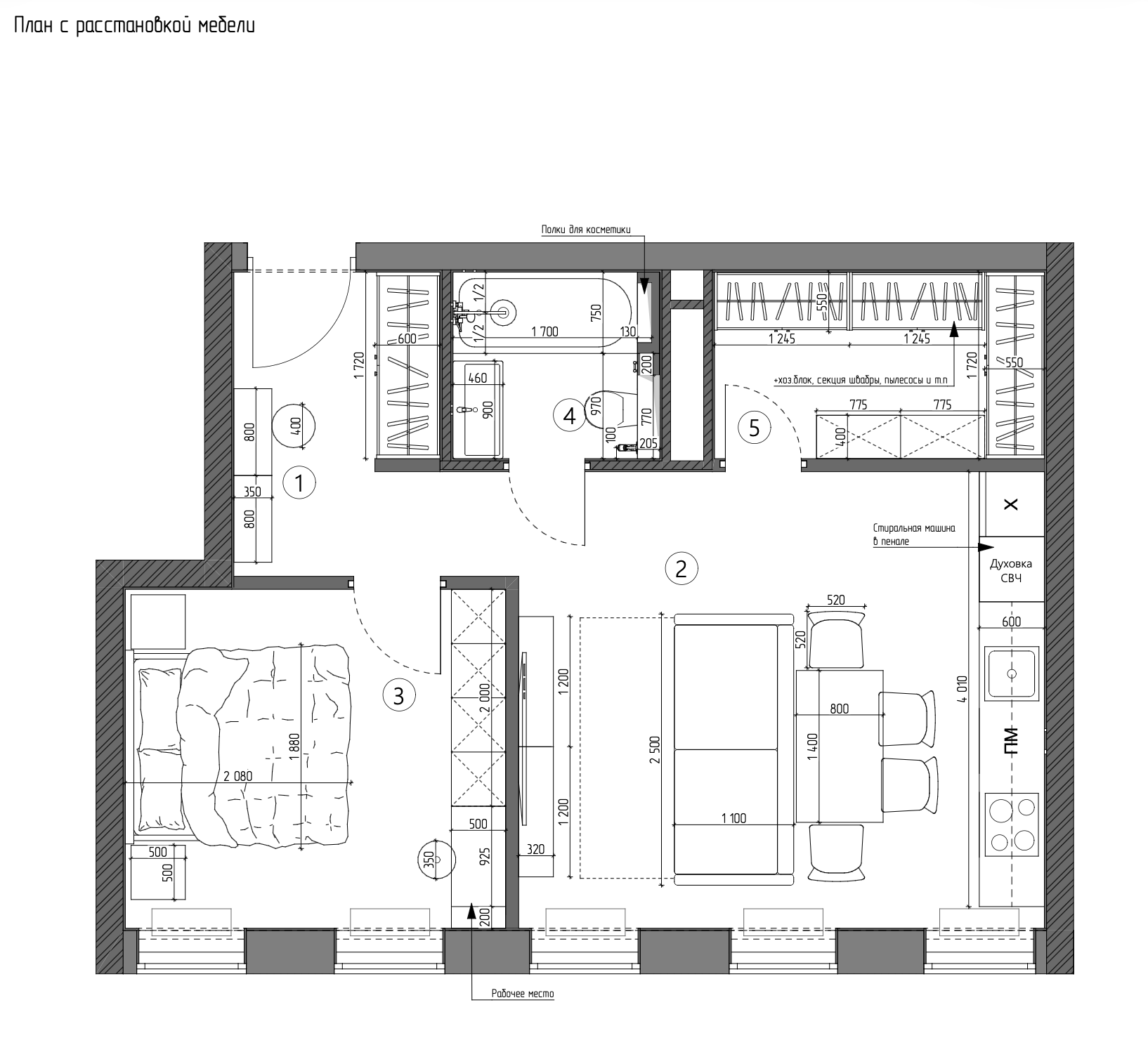
Квартира создавалась под сдачу с с продуманной качественной отделкой. Интерьер выполнен в стиле неоклассики, где каждое решение реализовано с точностью к деталям.
Планировка и перегородки
Перегородки выполнены из газобетонных блоков. Планировка включает:
прихожую с гардеробным шкафом
спальню
просторную кухню-гостиную
санузел с ванной
вместительную гардеробную-кладовку
Отделка и материалы
Во всей квартире установлены накладные плинтусы и багетная лепнина. Потолки выполнены из гипсокартона, а на полу уложен кварц-винил французской ёлкой.
Инженерные системы
Каждая инженерная система продумана до мелочей, чтобы в квартире было безопасно и удобно. Надёжность и комфорт наш стандарт на всех объектах.
Воскресенская
Шумоизоляция
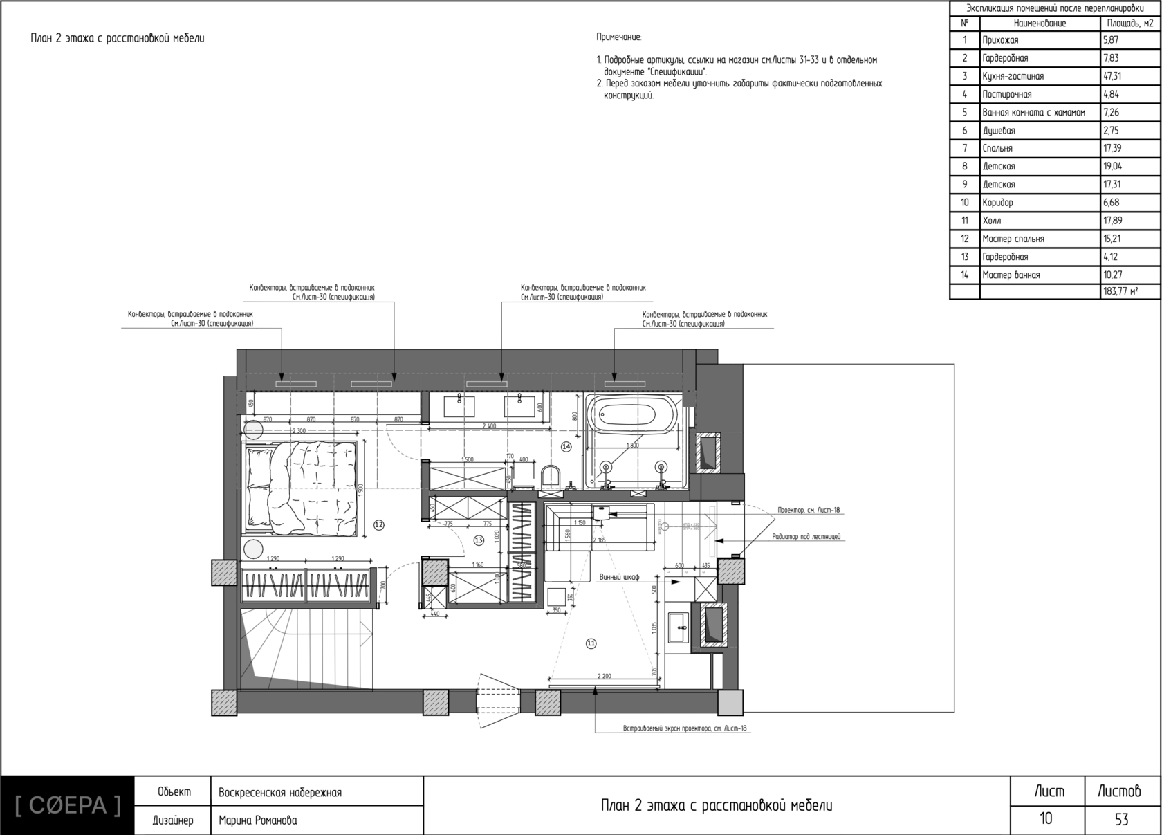
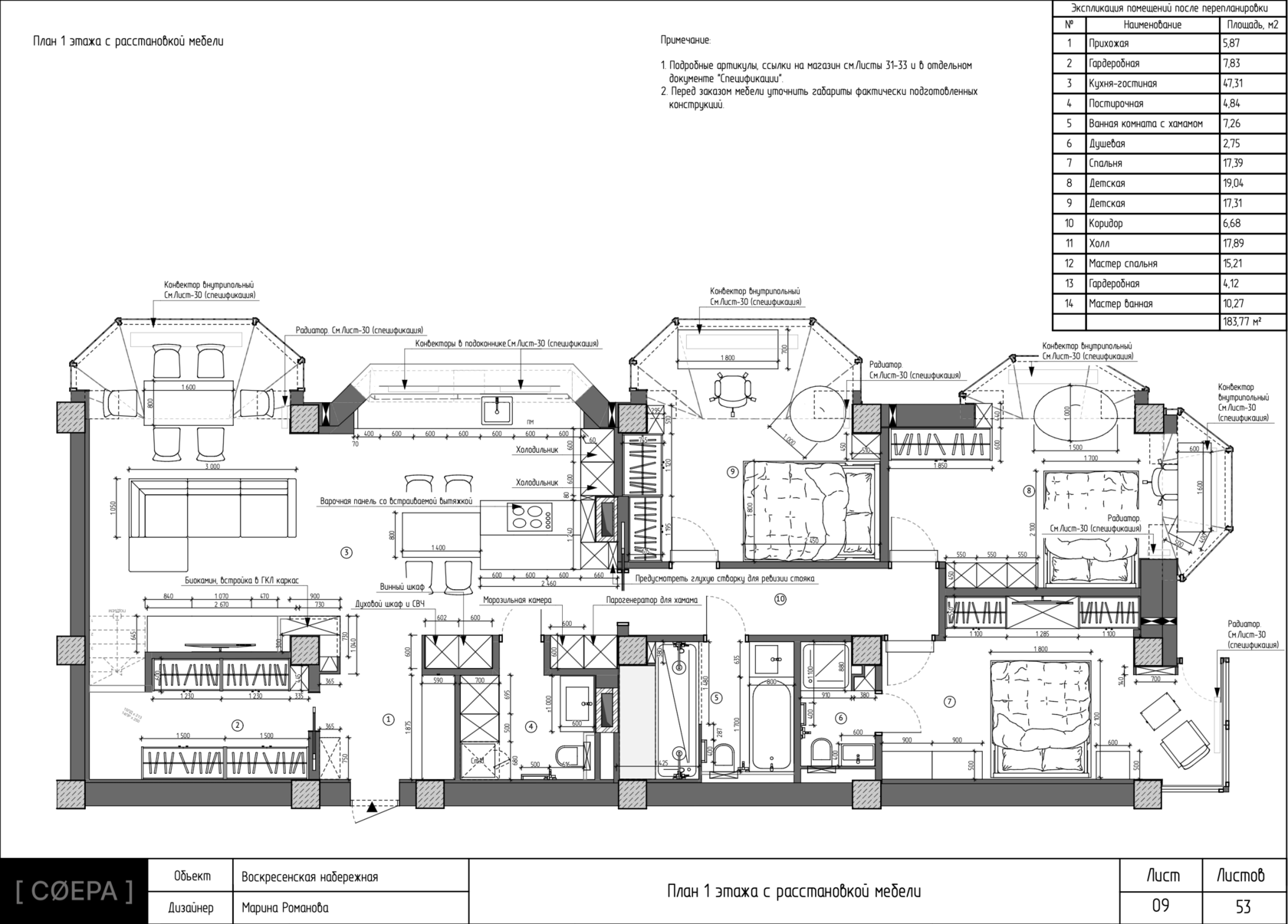
Двухуровневая квартира с большой террасой и полностью обновлёнными перегородками: часть выполнена из газоблока, часть - каркасная с шумоизоляцией. Все внешние стены шумоизолированы для максимального комфорта.
Электрика
Электроснабжение соответствует стандартам бизнес-класса: увеличенная выделенная мощность и около 5 км проложенного кабеля обеспечивают стабильную работу всех приборов.
Первый этаж
Кухня с панорамным окном без перемычек
Гостиная
Жилой блок с двумя детскими комнатами, гостевой комнатой и санузлом
Персональный хамам
Большой гардероб в прихожей
Подсветка лестницы с датчиками движения
Второй этаж
Мастер-блок с панорамными окнами и гардеробной
Ванная с двойной раковиной и душевой, отдельная ванна
Высота потолков до 4,5 м
Домашний кинотеатр с встроенным экраном и акустикой
Терраса с перголой, обновлённой террасной доской и подсветкой
Надёжность
Все элементы квартиры выполнены с вниманием к надёжности и удобству, как и на каждом нашем проекте.
Запишитесь на экскурсию по текущим объектам
Заполните форму. Мы свяжемся с вами и согласуем экскурсию.
Нажимая кнопку «Записаться», вы автоматически соглашаетесь с Политикой конфиденциальности и даете свое согласие на обработку персональных данных